
Lautarmói 5, íbúð 501
3 herbergja íbúð með þvottahúsi á 5. hæð í suð-vestur enda.
Íbúðinni fylgir stæði í bílageymslu.
Íbúðin afhendist fullfrágengin. Flísar eru á gólfum baðherbergis og þvottahúss. Vínilparket er á öðrum gólfum. Innihurðir eru hvítar sprautulakkaðar.
Vélrænt útsog er frá baðherbergi, þvottahúsi og eldhúsviftu. Allt neysluvatn fer í gegnum varmaskipti.
Mynd-dyrasími er í íbúðinni. Burðarplata er steypt þar sem einangrun og gólfhitalögn er lögð ofan á áður en sjálf gólfplatan er steypt. Með þessu næst hámarks hljóðeinangrun milli hæða.
Svalagangur
Aðgengi að íbúðum í Lautarmóa 5 er um svalagang. Snjóbræðsla er í svalagangi og glerlokun.
Svalir
Tvennar svalir eru á íbúðinni á suð-vestur og norð-vestur hlið. Svalirnar eru klæddar með pallaefni. Glerhandriði er á svölum.
Stærð: 112,8 fm.
Íbúð: 101,0 fm.
Geymsla: 11,8 fm.
Bílastæði og geymsla


Lautarmói 5, íbúð 401
3 herbergja íbúð með þvottahúsi á 4. hæð í suð-vestur enda.
Íbúðinni fylgir stæði í bílageymslu.
Íbúðin afhendist fullfrágengin. Flísar eru á gólfum baðherbergis og þvottahúss. Vínilparket er á öðrum gólfum. Innihurðir eru hvítar sprautulakkaðar.
Vélrænt útsog er frá baðherbergi, þvottahúsi og eldhúsviftu. Allt neysluvatn fer í gegnum varmaskipti.
Mynd-dyrasími er í íbúðinni. Burðarplata er steypt þar sem einangrun og gólfhitalögn er lögð ofan á áður en sjálf gólfplatan er steypt. Með þessu næst hámarks hljóðeinangrun milli hæða.
Svalagangur
Aðgengi að íbúðum í Lautarmóa 5 er um svalagang. Snjóbræðsla er í svalagangi og glerlokun.
Svalir
Tvennar svalir eru á íbúðinni á suð-vestur og norð-vestur hlið. Svalirnar eru klæddar með pallaefni. Glerhandriði er á svölum.
Stærð: 110,7 fm.
Íbúð: 101,0 fm.
Geymsla: 9,7 fm.
Bílastæði og geymsla


Lautarmói 5, íbúð 301
3 herbergja íbúð með þvottahúsi á 3. hæð í suð-vestur enda.
Íbúðinni fylgir stæði í bílageymslu.
Íbúðin afhendist fullfrágengin. Flísar eru á gólfum baðherbergis og þvottahúss. Vínilparket er á öðrum gólfum. Innihurðir eru hvítar sprautulakkaðar.
Vélrænt útsog er frá baðherbergi, þvottahúsi og eldhúsviftu. Allt neysluvatn fer í gegnum varmaskipti.
Mynd-dyrasími er í íbúðinni. Burðarplata er steypt þar sem einangrun og gólfhitalögn er lögð ofan á áður en sjálf gólfplatan er steypt. Með þessu næst hámarks hljóðeinangrun milli hæða.
Svalagangur
Aðgengi að íbúðum í Lautarmóa 5 er um svalagang. Snjóbræðsla er í svalagangi og glerlokun.
Svalir
Tvennar svalir eru á íbúðinni á suð-vestur og norð-vestur hlið. Svalirnar eru klæddar með pallaefni. Glerhandriði er á svölum.
Stærð: 110,0 fm.
Íbúð: 101,0 fm.
Geymsla: 9,0 fm.
Bílastæði og geymsla


Lautarmói 5, íbúð 201
5 herbergja íbúð á 2. hæð í suð-vestur enda.
Íbúðinni fylgir stæði í bílageymslu.
Íbúðin afhendist fullfrágengin. Flísar eru á gólfi baðherbergis. Vínilparket er á öðrum gólfum. Innihurðir eru hvítar sprautulakkaðar.
Vélrænt útsog er frá baðherbergi og eldhúsviftu. Allt neysluvatn fer í gegnum varmaskipti.
Mynd-dyrasími er í íbúðinni. Burðarplata er steypt þar sem einangrun og gólfhitalögn er lögð ofan á áður en sjálf gólfplatan er steypt. Með þessu næst hámarks hljóðeinangrun milli hæða.
Svalagangur
Aðgengi að íbúðum í Lautarmóa 5 er um svalagang. Snjóbræðsla er í svalagangi og glerlokun.
Svalir
Tvennar svalir eru á íbúðinni á suð-vestur og norð-vestur hlið. Svalirnar eru klæddar með pallaefni. Glerhandriði er á svölum.
Stærð: 109,0 fm.
Íbúð: 101,0 fm.
Geymsla: 8,0 fm.
Bílastæði og geymsla


Lautarmói 5, íbúð 101
5 herbergja íbúð á 1. hæð í suð-vestur enda.
Íbúðinni fylgir stæði í bílageymslu.
Íbúðin afhendist fullfrágengin. Flísar eru á gólfi baðherbergis. Vínilparket er á öðrum gólfum. Innihurðir eru hvítar sprautulakkaðar.
Vélrænt útsog er frá baðherbergi og eldhúsviftu. Allt neysluvatn fer í gegnum varmaskipti.
Mynd-dyrasími er í íbúðinni. Burðarplata er steypt þar sem einangrun og gólfhitalögn er lögð ofan á áður en sjálf gólfplatan er steypt. Með þessu næst hámarks hljóðeinangrun milli hæða.
Svalagangur
Aðgengi að íbúðum í Lautarmóa 5 er um svalagang. Snjóbræðsla er í svalagangi og glerlokun.
Svalir
Tvennar svalir eru á íbúðinni á suð-vestur og norð-vestur hlið. Svalirnar eru klæddar með pallaefni. Glerhandriði er á svölum.
Stærð: 108,6 fm.
Íbúð: 101,0 fm.
Geymsla: 7,6 fm.
Bílastæði og geymsla


Lautarmói 5, íbúð 502
3 herbergja íbúð á 5. hæð.
Íbúðinni fylgir stæði í bílageymslu.
Íbúðin afhendist fullfrágengin. Flísar eru á gólfi baðherbergis. Vínilparket er á öðrum gólfum. Innihurðir eru hvítar sprautulakkaðar.
Vélrænt útsog er frá baðherbergi og eldhúsviftu. Allt neysluvatn fer í gegnum varmaskipti.
Mynd-dyrasími er í íbúðinni. Burðarplata er steypt þar sem einangrun og gólfhitalögn er lögð ofan á áður en sjálf gólfplatan er steypt. Með þessu næst hámarks hljóðeinangrun milli hæða.
Svalagangur
Aðgengi að íbúðum í Lautarmóa 5 er um svalagang. Snjóbræðsla er í svalagangi og glerlokun.
Svalir
Svalir eru á íbúðinni í norð-vestur hlið. Svalirnar eru klæddar með pallaefni. Glerhandriði er á svölum.
Stærð: 74,6 fm.
Íbúð: 67,6 fm.
Geymsla: 7,0 fm.
Bílastæði og geymsla


Lautarmói 5, íbúð 402
3 herbergja íbúð á 4. hæð.
Íbúðinni fylgir stæði í bílageymslu.
Íbúðin afhendist fullfrágengin. Flísar eru á gólfi baðherbergis. Vínilparket er á öðrum gólfum. Innihurðir eru hvítar sprautulakkaðar.
Vélrænt útsog er frá baðherbergi og eldhúsviftu. Allt neysluvatn fer í gegnum varmaskipti.
Mynd-dyrasími er í íbúðinni. Burðarplata er steypt þar sem einangrun og gólfhitalögn er lögð ofan á áður en sjálf gólfplatan er steypt. Með þessu næst hámarks hljóðeinangrun milli hæða.
Svalagangur
Aðgengi að íbúðum í Lautarmóa 5 er um svalagang. Snjóbræðsla er í svalagangi og glerlokun.
Svalir
Svalir eru á íbúðinni í norð-vestur hlið. Svalirnar eru klæddar með pallaefni. Glerhandriði er á svölum.
Stærð: 74,4 fm.
Íbúð: 67,6 fm.
Geymsla: 6,8 fm.
Bílastæði og geymsla


Lautarmói 5, íbúð 302
3 herbergja íbúð á 3. hæð.
Íbúðinni fylgir EKKI stæði í bílageymslu.
Íbúðin afhendist fullfrágengin. Flísar eru á gólfi baðherbergis. Vínilparket er á öðrum gólfum. Innihurðir eru hvítar sprautulakkaðar.
Vélrænt útsog er frá baðherbergi og eldhúsviftu. Allt neysluvatn fer í gegnum varmaskipti.
Mynd-dyrasími er í íbúðinni. Burðarplata er steypt þar sem einangrun og gólfhitalögn er lögð ofan á áður en sjálf gólfplatan er steypt. Með þessu næst hámarks hljóðeinangrun milli hæða.
Svalagangur
Aðgengi að íbúðum í Lautarmóa 5 er um svalagang. Snjóbræðsla er í svalagangi og glerlokun.
Svalir
Svalir eru á íbúðinni í norð-vestur hlið. Svalirnar eru klæddar með pallaefni. Glerhandriði er á svölum.
Stærð: 74,5 fm.
Íbúð: 67,6 fm.
Geymsla: 6,9 fm.
Geymsla


Lautarmói 5, íbúð 202
3 herbergja íbúð á 2. hæð.
Íbúðinni fylgir EKKI stæði í bílageymslu.
Íbúðin afhendist fullfrágengin. Flísar eru á gólfi baðherbergis. Vínilparket er á öðrum gólfum. Innihurðir eru hvítar sprautulakkaðar.
Vélrænt útsog er frá baðherbergi og eldhúsviftu. Allt neysluvatn fer í gegnum varmaskipti.
Mynd-dyrasími er í íbúðinni. Burðarplata er steypt þar sem einangrun og gólfhitalögn er lögð ofan á áður en sjálf gólfplatan er steypt. Með þessu næst hámarks hljóðeinangrun milli hæða.
Svalagangur
Aðgengi að íbúðum í Lautarmóa 5 er um svalagang. Snjóbræðsla er í svalagangi og glerlokun.
Svalir
Svalir eru á íbúðinni í norð-vestur hlið. Svalirnar eru klæddar með pallaefni. Glerhandriði er á svölum.
Stærð: 73,9 fm.
Íbúð: 67,6 fm.
Geymsla: 6,3 fm.
Geymsla


Lautarmói 5, íbúð 102
3 herbergja íbúð á 1. hæð.
Íbúðinni fylgir EKKI stæði í bílageymslu.
Íbúðin afhendist fullfrágengin. Flísar eru á gólfi baðherbergis. Vínilparket er á öðrum gólfum. Innihurðir eru hvítar sprautulakkaðar.
Vélrænt útsog er frá baðherbergi og eldhúsviftu. Allt neysluvatn fer í gegnum varmaskipti.
Mynd-dyrasími er í íbúðinni. Burðarplata er steypt þar sem einangrun og gólfhitalögn er lögð ofan á áður en sjálf gólfplatan er steypt. Með þessu næst hámarks hljóðeinangrun milli hæða.
Svalagangur
Aðgengi að íbúðum í Lautarmóa 5 er um svalagang. Snjóbræðsla er í svalagangi og glerlokun.
Svalir
Svalir eru á íbúðinni í norð-vestur hlið. Svalirnar eru klæddar með pallaefni. Glerhandriði er á svölum.
Stærð: 73,9 fm.
Íbúð: 67,6 fm.
Geymsla: 6,3 fm.
Geymsla


Lautarmói 5, íbúð 503
3 herbergja íbúð á 5. hæð.
Íbúðinni fylgir stæði í bílageymslu.
Íbúðin afhendist fullfrágengin. Flísar eru á gólfi baðherbergis. Vínilparket er á öðrum gólfum. Innihurðir eru hvítar sprautulakkaðar.
Vélrænt útsog er frá baðherbergi og eldhúsviftu. Allt neysluvatn fer í gegnum varmaskipti.
Mynd-dyrasími er í íbúðinni. Burðarplata er steypt þar sem einangrun og gólfhitalögn er lögð ofan á áður en sjálf gólfplatan er steypt. Með þessu næst hámarks hljóðeinangrun milli hæða.
Svalagangur
Aðgengi að íbúðum í Lautarmóa 5 er um svalagang. Snjóbræðsla er í svalagangi og glerlokun.
Svalir
Svalir eru á íbúðinni í norð-vestur hlið. Svalirnar eru klæddar með pallaefni. Glerhandriði er á svölum.
Stærð: 71,5 fm.
Íbúð: 66,0 fm.
Geymsla: 5,5 fm.
Bílastæði og geymsla


Lautarmói 5, íbúð 403
3 herbergja íbúð á 4. hæð.
Íbúðinni fylgir stæði í bílageymslu.
Íbúðin afhendist fullfrágengin. Flísar eru á gólfi baðherbergis. Vínilparket er á öðrum gólfum. Innihurðir eru hvítar sprautulakkaðar.
Vélrænt útsog er frá baðherbergi og eldhúsviftu. Allt neysluvatn fer í gegnum varmaskipti.
Mynd-dyrasími er í íbúðinni. Burðarplata er steypt þar sem einangrun og gólfhitalögn er lögð ofan á áður en sjálf gólfplatan er steypt. Með þessu næst hámarks hljóðeinangrun milli hæða.
Svalagangur
Aðgengi að íbúðum í Lautarmóa 5 er um svalagang. Snjóbræðsla er í svalagangi og glerlokun.
Svalir
Svalir eru á íbúðinni í norð-vestur hlið. Svalirnar eru klæddar með pallaefni. Glerhandriði er á svölum.
Stærð: 70,9 fm.
Íbúð: 66,0 fm.
Geymsla: 4,9 fm.
Bílastæði og geymsla


Lautarmói 5, íbúð 303
3 herbergja íbúð á 3. hæð.
Íbúðinni fylgir EKKI stæði í bílageymslu.
Íbúðin afhendist fullfrágengin. Flísar eru á gólfi baðherbergis. Vínilparket er á öðrum gólfum. Innihurðir eru hvítar sprautulakkaðar.
Vélrænt útsog er frá baðherbergi og eldhúsviftu. Allt neysluvatn fer í gegnum varmaskipti.
Mynd-dyrasími er í íbúðinni. Burðarplata er steypt þar sem einangrun og gólfhitalögn er lögð ofan á áður en sjálf gólfplatan er steypt. Með þessu næst hámarks hljóðeinangrun milli hæða.
Svalagangur
Aðgengi að íbúðum í Lautarmóa 5 er um svalagang. Snjóbræðsla er í svalagangi og glerlokun.
Svalir
Svalir eru á íbúðinni í norð-vestur hlið. Svalirnar eru klæddar með pallaefni. Glerhandriði er á svölum.
Stærð: 70,0 fm.
Íbúð: 66,0 fm.
Geymsla: 4,0 fm.
Geymsla


Lautarmói 5, íbúð 203
3 herbergja íbúð á 2. hæð.
Íbúðinni fylgir EKKI stæði í bílageymslu.
Íbúðin afhendist fullfrágengin. Flísar eru á gólfi baðherbergis. Vínilparket er á öðrum gólfum. Innihurðir eru hvítar sprautulakkaðar.
Vélrænt útsog er frá baðherbergi og eldhúsviftu. Allt neysluvatn fer í gegnum varmaskipti.
Mynd-dyrasími er í íbúðinni. Burðarplata er steypt þar sem einangrun og gólfhitalögn er lögð ofan á áður en sjálf gólfplatan er steypt. Með þessu næst hámarks hljóðeinangrun milli hæða.
Svalagangur
Aðgengi að íbúðum í Lautarmóa 5 er um svalagang. Snjóbræðsla er í svalagangi og glerlokun.
Svalir
Svalir eru á íbúðinni í norð-vestur hlið. Svalirnar eru klæddar með pallaefni. Glerhandriði er á svölum.
Stærð: 70,0 fm.
Íbúð: 66,0 fm.
Geymsla: 4,0 fm.
Geymsla


Lautarmói 5, íbúð 103
3 herbergja íbúð á 1. hæð.
Íbúðinni fylgir EKKI stæði í bílageymslu.
Íbúðin afhendist fullfrágengin. Flísar eru á gólfi baðherbergis. Vínilparket er á öðrum gólfum. Innihurðir eru hvítar sprautulakkaðar.
Vélrænt útsog er frá baðherbergi og eldhúsviftu. Allt neysluvatn fer í gegnum varmaskipti.
Mynd-dyrasími er í íbúðinni. Burðarplata er steypt þar sem einangrun og gólfhitalögn er lögð ofan á áður en sjálf gólfplatan er steypt. Með þessu næst hámarks hljóðeinangrun milli hæða.
Svalagangur
Aðgengi að íbúðum í Lautarmóa 5 er um svalagang. Snjóbræðsla er í svalagangi og glerlokun.
Svalir
Svalir eru á íbúðinni í norð-vestur hlið. Svalirnar eru klæddar með pallaefni. Glerhandriði er á svölum.
Stærð: 70,0 fm.
Íbúð: 66,0 fm.
Geymsla: 4,0 fm.
Geymsla


Lautarmói 5, íbúð 504
3 herbergja íbúð á 5. hæð í norð-austur enda.
Íbúðinni fylgir stæði í bílageymslu.
Íbúðin afhendist fullfrágengin. Flísar eru á gólfi baðherbergis. Vínilparket er á öðrum gólfum. Innihurðir eru hvítar sprautulakkaðar.
Vélrænt útsog er frá baðherbergi og eldhúsviftu. Allt neysluvatn fer í gegnum varmaskipti.
Mynd-dyrasími er í íbúðinni. Burðarplata er steypt þar sem einangrun og gólfhitalögn er lögð ofan á áður en sjálf gólfplatan er steypt. Með þessu næst hámarks hljóðeinangrun milli hæða.
Svalagangur
Aðgengi að íbúðum í Lautarmóa 5 er um svalagang. Snjóbræðsla er í svalagangi og glerlokun.
Svalir
Svalir eru á íbúðinni í norð-vestur hlið. Svalirnar eru klæddar með pallaefni. Glerhandriði er á svölum.
Stærð: 88,3 fm.
Íbúð: 81,0 fm.
Geymsla: 7,3 fm.
Bílastæði og geymsla


Lautarmói 5, íbúð 404
3 herbergja íbúð á 4. hæð í norð-austur enda.
Íbúðinni fylgir stæði í bílageymslu.
Íbúðin afhendist fullfrágengin. Flísar eru á gólfi baðherbergis. Vínilparket er á öðrum gólfum. Innihurðir eru hvítar sprautulakkaðar.
Vélrænt útsog er frá baðherbergi og eldhúsviftu. Allt neysluvatn fer í gegnum varmaskipti.
Mynd-dyrasími er í íbúðinni. Burðarplata er steypt þar sem einangrun og gólfhitalögn er lögð ofan á áður en sjálf gólfplatan er steypt. Með þessu næst hámarks hljóðeinangrun milli hæða.
Svalagangur
Aðgengi að íbúðum í Lautarmóa 5 er um svalagang. Snjóbræðsla er í svalagangi og glerlokun.
Svalir
Svalir eru á íbúðinni í norð-vestur hlið. Svalirnar eru klæddar með pallaefni. Glerhandriði er á svölum.
Stærð: 88,2 fm.
Íbúð: 81,0 fm.
Geymsla: 7,2 fm.
Bílastæði og geymsla


Lautarmói 5, íbúð 304
3 herbergja íbúð á 3. hæð í norð-austur enda.
Íbúðinni fylgir stæði í bílageymslu.
Íbúðin afhendist fullfrágengin. Flísar eru á gólfi baðherbergis. Vínilparket er á öðrum gólfum. Innihurðir eru hvítar sprautulakkaðar.
Vélrænt útsog er frá baðherbergi og eldhúsviftu. Allt neysluvatn fer í gegnum varmaskipti.
Mynd-dyrasími er í íbúðinni. Burðarplata er steypt þar sem einangrun og gólfhitalögn er lögð ofan á áður en sjálf gólfplatan er steypt. Með þessu næst hámarks hljóðeinangrun milli hæða.
Svalagangur
Aðgengi að íbúðum í Lautarmóa 5 er um svalagang. Snjóbræðsla er í svalagangi og glerlokun.
Svalir
Svalir eru á íbúðinni í norð-vestur hlið. Svalirnar eru klæddar með pallaefni. Glerhandriði er á svölum.
Stærð: 88,1 fm.
Íbúð: 81,0 fm.
Geymsla: 7,1 fm.
Bílastæði og geymsla


Lautarmói 5, íbúð 204
3 herbergja íbúð á 2. hæð í norð-austur enda.
Íbúðinni fylgir stæði í bílageymslu.
Íbúðin afhendist fullfrágengin. Flísar eru á gólfi baðherbergis. Vínilparket er á öðrum gólfum. Innihurðir eru hvítar sprautulakkaðar.
Vélrænt útsog er frá baðherbergi og eldhúsviftu. Allt neysluvatn fer í gegnum varmaskipti.
Mynd-dyrasími er í íbúðinni. Burðarplata er steypt þar sem einangrun og gólfhitalögn er lögð ofan á áður en sjálf gólfplatan er steypt. Með þessu næst hámarks hljóðeinangrun milli hæða.
Svalagangur
Aðgengi að íbúðum í Lautarmóa 5 er um svalagang. Snjóbræðsla er í svalagangi og glerlokun.
Svalir
Svalir eru á íbúðinni í norð-vestur hlið. Svalirnar eru klæddar með pallaefni. Glerhandriði er á svölum.
Stærð: 88,0 fm.
Íbúð: 81,0 fm.
Geymsla: 7,0 fm.
Bílastæði og geymsla


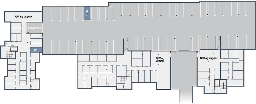
Lautarmói 5, íbúð 104
3 herbergja íbúð á 1. hæð í norð-austur enda.
Íbúðinni fylgir stæði í bílageymslu.
Íbúðin afhendist fullfrágengin. Flísar eru á gólfi baðherbergis. Vínilparket er á öðrum gólfum. Innihurðir eru hvítar sprautulakkaðar.
Vélrænt útsog er frá baðherbergi og eldhúsviftu. Allt neysluvatn fer í gegnum varmaskipti.
Mynd-dyrasími er í íbúðinni. Burðarplata er steypt þar sem einangrun og gólfhitalögn er lögð ofan á áður en sjálf gólfplatan er steypt. Með þessu næst hámarks hljóðeinangrun milli hæða.
Svalagangur
Aðgengi að íbúðum í Lautarmóa 5 er um svalagang. Snjóbræðsla er í svalagangi og glerlokun.
Svalir
Svalir eru á íbúðinni í norð-vestur hlið. Svalirnar eru klæddar með pallaefni. Glerhandriði er á svölum.
Stærð: 88,4 fm.
Íbúð: 81,0 fm.
Geymsla: 7,4 fm.
Bílastæði og geymsla



