
Lautarmói 3, íbúð 105
3 herbergja íbúð með þvottahúsi á 1. hæð í norð-vestur enda.
Íbúðinni fylgir stæði í bílageymslu.
Íbúðin afhendist fullfrágengin. Flísar eru á gólfum baðherbergis og þvottahúss. Vínilparket er á öðrum gólfum. Innihurðir eru hvítar sprautulakkaðar.
Vélrænt útsog er frá baðherbergi, þvottahúsi og eldhúsviftu. Allt neysluvatn fer í gegnum varmaskipti.
Mynd-dyrasími er í íbúðinni. Burðarplata er steypt þar sem einangrun og gólfhitalögn er lögð ofan á áður en sjálf gólfplatan er steypt. Með þessu næst hámarks hljóðeinangrun milli hæða.
Svalagangur
Aðgengi að íbúðum í Lautarmóa 3 er um svalagang. Snjóbræðsla er í svalagangi og glerlokun.
Svalir
Svalir eru á íbúðinni í suð-vestur hlið. Svalirnar eru klæddar með pallaefni. Glerhandriði er á svölum.
Stærð: 105,4 fm.
Íbúð: 94,4 fm.
Geymsla: 11,0 fm.
Bílastæði og geymsla


Lautarmói 3, íbúð 205
3 herbergja íbúð með þvottahúsi á 2. hæð í norð-vestur enda.
Íbúðinni fylgir stæði í bílageymslu.
Íbúðin afhendist fullfrágengin. Flísar eru á gólfum baðherbergis og þvottahúss. Vínilparket er á öðrum gólfum. Innihurðir eru hvítar sprautulakkaðar.
Vélrænt útsog er frá baðherbergi, þvottahúsi og eldhúsviftu. Allt neysluvatn fer í gegnum varmaskipti.
Mynd-dyrasími er í íbúðinni. Burðarplata er steypt þar sem einangrun og gólfhitalögn er lögð ofan á áður en sjálf gólfplatan er steypt. Með þessu næst hámarks hljóðeinangrun milli hæða.
Svalagangur
Aðgengi að íbúðum í Lautarmóa 3 er um svalagang. Snjóbræðsla er í svalagangi og glerlokun.
Svalir
Svalir eru á íbúðinni í suð-vestur hlið. Svalirnar eru klæddar með pallaefni. Glerhandriði er á svölum.
Stærð: 108,1 fm.
Íbúð: 94,4 fm.
Geymsla: 13,7 fm.
Bílastæði og geymsla


Lautarmói 3, íbúð 305
3 herbergja íbúð með þvottahúsi á 3. hæð í norð-vestur enda.
Íbúðinni fylgir stæði í bílageymslu.
Íbúðin afhendist fullfrágengin. Flísar eru á gólfum baðherbergis og þvottahúss. Vínilparket er á öðrum gólfum. Innihurðir eru hvítar sprautulakkaðar.
Vélrænt útsog er frá baðherbergi, þvottahúsi og eldhúsviftu. Allt neysluvatn fer í gegnum varmaskipti.
Mynd-dyrasími er í íbúðinni. Burðarplata er steypt þar sem einangrun og gólfhitalögn er lögð ofan á áður en sjálf gólfplatan er steypt. Með þessu næst hámarks hljóðeinangrun milli hæða.
Svalagangur
Aðgengi að íbúðum í Lautarmóa 3 er um svalagang. Snjóbræðsla er í svalagangi og glerlokun.
Svalir
Svalir eru á íbúðinni í suð-vestur hlið. Svalirnar eru klæddar með pallaefni. Glerhandriði er á svölum.
Stærð: 104,7 fm.
Íbúð: 94,4 fm.
Geymsla: 10,3 fm.
Bílastæði og geymsla


Lautarmói 3, íbúð 405
3 herbergja íbúð með þvottahúsi á 4. hæð í norð-vestur enda.
Íbúðinni fylgir stæði í bílageymslu.
Íbúðin afhendist fullfrágengin. Flísar eru á gólfum baðherbergis og þvottahúss. Vínilparket er á öðrum gólfum. Innihurðir eru hvítar sprautulakkaðar.
Vélrænt útsog er frá baðherbergi, þvottahúsi og eldhúsviftu. Allt neysluvatn fer í gegnum varmaskipti.
Mynd-dyrasími er í íbúðinni. Burðarplata er steypt þar sem einangrun og gólfhitalögn er lögð ofan á áður en sjálf gólfplatan er steypt. Með þessu næst hámarks hljóðeinangrun milli hæða.
Svalagangur
Aðgengi að íbúðum í Lautarmóa 3 er um svalagang. Snjóbræðsla er í svalagangi og glerlokun.
Svalir
Svalir eru á íbúðinni í suð-vestur hlið. Svalirnar eru klæddar með pallaefni. Glerhandriði er á svölum.
Stærð: 109,7 fm.
Íbúð: 94,4 fm.
Geymsla: 15,3 fm.
Bílastæði og geymsla


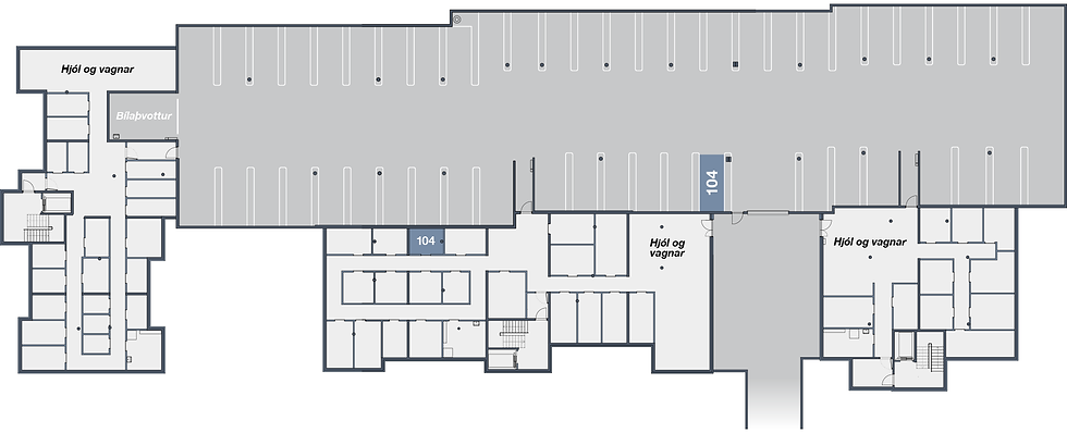
Lautarmói 3, íbúð 104
4 herbergja íbúð á 1. hæð.
Íbúðinni fylgir stæði í bílageymslu.
Íbúðin afhendist fullfrágengin. Flísar eru á gólfum baðherbergis. Vínilparket er á öðrum gólfum. Innihurðir eru hvítar sprautulakkaðar.
Vélrænt útsog er frá baðherbergi og eldhúsviftu. Allt neysluvatn fer í gegnum varmaskipti.
Mynd-dyrasími er í íbúðinni. Burðarplata er steypt þar sem einangrun og gólfhitalögn er lögð ofan á áður en sjálf gólfplatan er steypt. Með þessu næst hámarks hljóðeinangrun milli hæða.
Svalagangur
Aðgengi að íbúðum í Lautarmóa 3 er um svalagang. Snjóbræðsla er í svalagangi og glerlokun.
Svalir
Svalir eru á íbúðinni í suð-vestur hlið. Svalirnar eru klæddar með pallaefni. Glerhandriði er á svölum.
Stærð: 82,4 fm.
Íbúð: 75,0 fm.
Geymsla: 7,4 fm.
Bílastæði og geymsla


Lautarmói 3, íbúð 204
4 herbergja íbúð á 2. hæð.
Íbúðinni fylgir stæði í bílageymslu.
Íbúðin afhendist fullfrágengin. Flísar eru á gólfum baðherbergis. Vínilparket er á öðrum gólfum. Innihurðir eru hvítar sprautulakkaðar.
Vélrænt útsog er frá baðherbergi og eldhúsviftu. Allt neysluvatn fer í gegnum varmaskipti.
Mynd-dyrasími er í íbúðinni. Burðarplata er steypt þar sem einangrun og gólfhitalögn er lögð ofan á áður en sjálf gólfplatan er steypt. Með þessu næst hámarks hljóðeinangrun milli hæða.
Svalagangur
Aðgengi að íbúðum í Lautarmóa 3 er um svalagang. Snjóbræðsla er í svalagangi og glerlokun.
Svalir
Svalir eru á íbúðinni í suð-vestur hlið. Svalirnar eru klæddar með pallaefni. Glerhandriði er á svölum.
Stærð: 83,7 fm.
Íbúð: 75,0 fm.
Geymsla: 8,7 fm.
Bílastæði og geymsla


Lautarmói 3, íbúð 304
4 herbergja íbúð á 3. hæð.
Íbúðinni fylgir stæði í bílageymslu.
Íbúðin afhendist fullfrágengin. Flísar eru á gólfum baðherbergis. Vínilparket er á öðrum gólfum. Innihurðir eru hvítar sprautulakkaðar.
Vélrænt útsog er frá baðherbergi og eldhúsviftu. Allt neysluvatn fer í gegnum varmaskipti.
Mynd-dyrasími er í íbúðinni. Burðarplata er steypt þar sem einangrun og gólfhitalögn er lögð ofan á áður en sjálf gólfplatan er steypt. Með þessu næst hámarks hljóðeinangrun milli hæða.
Svalagangur
Aðgengi að íbúðum í Lautarmóa 3 er um svalagang. Snjóbræðsla er í svalagangi og glerlokun.
Svalir
Svalir eru á íbúðinni í suð-vestur hlið. Svalirnar eru klæddar með pallaefni. Glerhandriði er á svölum.
Stærð: 85,0 fm.
Íbúð: 75,0 fm.
Geymsla: 10,0 fm.
Bílastæði og geymsla


Lautarmói 3, íbúð 404
4 herbergja íbúð á 4. hæð.
Íbúðinni fylgir stæði í bílageymslu.
Íbúðin afhendist fullfrágengin. Flísar eru á gólfum baðherbergis. Vínilparket er á öðrum gólfum. Innihurðir eru hvítar sprautulakkaðar.
Vélrænt útsog er frá baðherbergi og eldhúsviftu. Allt neysluvatn fer í gegnum varmaskipti.
Mynd-dyrasími er í íbúðinni. Burðarplata er steypt þar sem einangrun og gólfhitalögn er lögð ofan á áður en sjálf gólfplatan er steypt. Með þessu næst hámarks hljóðeinangrun milli hæða.
Svalagangur
Aðgengi að íbúðum í Lautarmóa 3 er um svalagang. Snjóbræðsla er í svalagangi og glerlokun.
Svalir
Svalir eru á íbúðinni í suð-vestur hlið. Svalirnar eru klæddar með pallaefni. Glerhandriði er á svölum.
Stærð: 85,3 fm.
Íbúð: 75,0 fm.
Geymsla: 10,3 fm.
Bílastæði og geymsla


Lautarmói 3, íbúð 103
2 herbergja íbúð á 1. hæð.
Íbúðinni fylgir EKKI stæði í bílageymslu.
Íbúðin afhendist fullfrágengin. Flísar eru á gólfum baðherbergis. Vínilparket er á öðrum gólfum. Innihurðir eru hvítar sprautulakkaðar.
Vélrænt útsog er frá baðherbergi og eldhúsviftu. Allt neysluvatn fer í gegnum varmaskipti.
Mynd-dyrasími er í íbúðinni. Burðarplata er steypt þar sem einangrun og gólfhitalögn er lögð ofan á áður en sjálf gólfplatan er steypt. Með þessu næst hámarks hljóðeinangrun milli hæða.
Svalagangur
Aðgengi að íbúðum í Lautarmóa 3 er um svalagang. Snjóbræðsla er í svalagangi og glerlokun.
Svalir
Svalir eru á íbúðinni í suð-vestur hlið. Svalirnar eru klæddar með pallaefni. Glerhandriði er á svölum.
Stærð: 53,7 fm.
Íbúð: 47,2 fm.
Geymsla: 6,5 fm.
Geymsla


Lautarmói 3, íbúð 203
2 herbergja íbúð á 2. hæð.
Íbúðinni fylgir EKKI stæði í bílageymslu.
Íbúðin afhendist fullfrágengin. Flísar eru á gólfum baðherbergis. Vínilparket er á öðrum gólfum. Innihurðir eru hvítar sprautulakkaðar.
Vélrænt útsog er frá baðherbergi og eldhúsviftu. Allt neysluvatn fer í gegnum varmaskipti.
Mynd-dyrasími er í íbúðinni. Burðarplata er steypt þar sem einangrun og gólfhitalögn er lögð ofan á áður en sjálf gólfplatan er steypt. Með þessu næst hámarks hljóðeinangrun milli hæða.
Svalagangur
Aðgengi að íbúðum í Lautarmóa 3 er um svalagang. Snjóbræðsla er í svalagangi og glerlokun.
Svalir
Svalir eru á íbúðinni í suð-vestur hlið. Svalirnar eru klæddar með pallaefni. Glerhandriði er á svölum.
Stærð: 54,7 fm.
Íbúð: 47,2 fm.
Geymsla: 7,5 fm.
Geymsla


Lautarmói 3, íbúð 303
2 herbergja íbúð á 3. hæð.
Íbúðinni fylgir EKKI stæði í bílageymslu.
Íbúðin afhendist fullfrágengin. Flísar eru á gólfum baðherbergis. Vínilparket er á öðrum gólfum. Innihurðir eru hvítar sprautulakkaðar.
Vélrænt útsog er frá baðherbergi og eldhúsviftu. Allt neysluvatn fer í gegnum varmaskipti.
Mynd-dyrasími er í íbúðinni. Burðarplata er steypt þar sem einangrun og gólfhitalögn er lögð ofan á áður en sjálf gólfplatan er steypt. Með þessu næst hámarks hljóðeinangrun milli hæða.
Svalagangur
Aðgengi að íbúðum í Lautarmóa 3 er um svalagang. Snjóbræðsla er í svalagangi og glerlokun.
Svalir
Svalir eru á íbúðinni í suð-vestur hlið. Svalirnar eru klæddar með pallaefni. Glerhandriði er á svölum.
Stærð: 54,5 fm.
Íbúð: 47,2 fm.
Geymsla: 7,3 fm.
Geymsla


Lautarmói 3, íbúð 403
2 herbergja íbúð á 4. hæð.
Íbúðinni fylgir EKKI stæði í bílageymslu.
Íbúðin afhendist fullfrágengin. Flísar eru á gólfum baðherbergis. Vínilparket er á öðrum gólfum. Innihurðir eru hvítar sprautulakkaðar.
Vélrænt útsog er frá baðherbergi og eldhúsviftu. Allt neysluvatn fer í gegnum varmaskipti.
Mynd-dyrasími er í íbúðinni. Burðarplata er steypt þar sem einangrun og gólfhitalögn er lögð ofan á áður en sjálf gólfplatan er steypt. Með þessu næst hámarks hljóðeinangrun milli hæða.
Svalagangur
Aðgengi að íbúðum í Lautarmóa 3 er um svalagang. Snjóbræðsla er í svalagangi og glerlokun.
Svalir
Svalir eru á íbúðinni í suð-vestur hlið. Svalirnar eru klæddar með pallaefni. Glerhandriði er á svölum.
Stærð: 54,9 fm.
Íbúð: 47,2 fm.
Geymsla: 7,7 fm.
Geymsla


Lautarmói 3, íbúð 102
3 herbergja íbúð með þvottahúsi á 1. hæð.
Íbúðinni fylgir stæði í bílageymslu.
Íbúðin afhendist fullfrágengin. Flísar eru á gólfum baðherbergis og þvottahúss. Vínilparket er á öðrum gólfum. Innihurðir eru hvítar sprautulakkaðar.
Vélrænt útsog er frá baðherbergi, þvottahúsi og eldhúsviftu. Allt neysluvatn fer í gegnum varmaskipti.
Mynd-dyrasími er í íbúðinni. Burðarplata er steypt þar sem einangrun og gólfhitalögn er lögð ofan á áður en sjálf gólfplatan er steypt. Með þessu næst hámarks hljóðeinangrun milli hæða.
Svalagangur
Aðgengi að íbúðum í Lautarmóa 3 er um svalagang. Snjóbræðsla er í svalagangi og glerlokun.
Svalir
Svalir eru á íbúðinni í suð-vestur hlið. Svalirnar eru klæddar með pallaefni. Glerhandriði er á svölum.
Stærð: 83,0 fm.
Íbúð: 75,0 fm.
Geymsla: 8,0 fm.
Bílastæði og geymsla


Lautarmói 3, íbúð 202
3 herbergja íbúð með þvottahúsi á 2. hæð.
Íbúðinni fylgir stæði í bílageymslu.
Íbúðin afhendist fullfrágengin. Flísar eru á gólfum baðherbergis og þvottahúss. Vínilparket er á öðrum gólfum. Innihurðir eru hvítar sprautulakkaðar.
Vélrænt útsog er frá baðherbergi, þvottahúsi og eldhúsviftu. Allt neysluvatn fer í gegnum varmaskipti.
Mynd-dyrasími er í íbúðinni. Burðarplata er steypt þar sem einangrun og gólfhitalögn er lögð ofan á áður en sjálf gólfplatan er steypt. Með þessu næst hámarks hljóðeinangrun milli hæða.
Svalagangur
Aðgengi að íbúðum í Lautarmóa 3 er um svalagang. Snjóbræðsla er í svalagangi og glerlokun.
Svalir
Svalir eru á íbúðinni í suð-vestur hlið. Svalirnar eru klæddar með pallaefni. Glerhandriði er á svölum.
Stærð: 85,1 fm.
Íbúð: 75,0 fm.
Geymsla: 10,1 fm.
Bílastæði og geymsla


Lautarmói 3, íbúð 302
3 herbergja íbúð með þvottahúsi á 3. hæð.
Íbúðinni fylgir stæði í bílageymslu.
Íbúðin afhendist fullfrágengin. Flísar eru á gólfum baðherbergis og þvottahúss. Vínilparket er á öðrum gólfum. Innihurðir eru hvítar sprautulakkaðar.
Vélrænt útsog er frá baðherbergi, þvottahúsi og eldhúsviftu. Allt neysluvatn fer í gegnum varmaskipti.
Mynd-dyrasími er í íbúðinni. Burðarplata er steypt þar sem einangrun og gólfhitalögn er lögð ofan á áður en sjálf gólfplatan er steypt. Með þessu næst hámarks hljóðeinangrun milli hæða.
Svalagangur
Aðgengi að íbúðum í Lautarmóa 3 er um svalagang. Snjóbræðsla er í svalagangi og glerlokun.
Svalir
Svalir eru á íbúðinni í suð-vestur hlið. Svalirnar eru klæddar með pallaefni. Glerhandriði er á svölum.
Stærð: 83,0 fm.
Íbúð: 75,0 fm.
Geymsla: 8,0 fm.
Bílastæði og geymsla


Lautarmói 3, íbúð 402
3 herbergja íbúð með þvottahúsi á 4. hæð.
Íbúðinni fylgir stæði í bílageymslu.
Íbúðin afhendist fullfrágengin. Flísar eru á gólfum baðherbergis og þvottahúss. Vínilparket er á öðrum gólfum. Innihurðir eru hvítar sprautulakkaðar.
Vélrænt útsog er frá baðherbergi, þvottahúsi og eldhúsviftu. Allt neysluvatn fer í gegnum varmaskipti.
Mynd-dyrasími er í íbúðinni. Burðarplata er steypt þar sem einangrun og gólfhitalögn er lögð ofan á áður en sjálf gólfplatan er steypt. Með þessu næst hámarks hljóðeinangrun milli hæða.
Svalagangur
Aðgengi að íbúðum í Lautarmóa 3 er um svalagang. Snjóbræðsla er í svalagangi og glerlokun.
Svalir
Svalir eru á íbúðinni í suð-vestur hlið. Svalirnar eru klæddar með pallaefni. Glerhandriði er á svölum.
Stærð: 84,6 fm.
Íbúð: 75,0 fm.
Geymsla: 9,6 fm.
Bílastæði og geymsla


Lautarmói 3, íbúð 101
3 herbergja íbúð á 1. hæð í suð-austur enda.
Íbúðinni fylgir stæði í bílageymslu.
Íbúðin afhendist fullfrágengin. Flísar eru á gólfi baðherbergis. Vínilparket er á öðrum gólfum. Innihurðir eru hvítar sprautulakkaðar.
Vélrænt útsog er frá baðherbergi og eldhúsviftu. Allt neysluvatn fer í gegnum varmaskipti.
Mynd-dyrasími er í íbúðinni. Burðarplata er steypt þar sem einangrun og gólfhitalögn er lögð ofan á áður en sjálf gólfplatan er steypt. Með þessu næst hámarks hljóðeinangrun milli hæða.
Svalagangur
Aðgengi að íbúðum í Lautarmóa 3 er um svalagang. Snjóbræðsla er í svalagangi og glerlokun.
Svalir
Svalir eru á íbúðinni í suð-vestur hlið. Svalirnar eru klæddar með pallaefni. Glerhandriði er á svölum.
Stærð: 97,2 fm.
Íbúð: 86,9 fm.
Geymsla: 10,3 fm.
Bílastæði og geymsla


Lautarmói 3, íbúð 201
3 herbergja íbúð á 2. hæð í suð-austur enda.
Íbúðinni fylgir stæði í bílageymslu.
Íbúðin afhendist fullfrágengin. Flísar eru á gólfi baðherbergis. Vínilparket er á öðrum gólfum. Innihurðir eru hvítar sprautulakkaðar.
Vélrænt útsog er frá baðherbergi og eldhúsviftu. Allt neysluvatn fer í gegnum varmaskipti.
Mynd-dyrasími er í íbúðinni. Burðarplata er steypt þar sem einangrun og gólfhitalögn er lögð ofan á áður en sjálf gólfplatan er steypt. Með þessu næst hámarks hljóðeinangrun milli hæða.
Svalagangur
Aðgengi að íbúðum í Lautarmóa 3 er um svalagang. Snjóbræðsla er í svalagangi og glerlokun.
Svalir
Svalir eru á íbúðinni í suð-vestur hlið. Svalirnar eru klæddar með pallaefni. Glerhandriði er á svölum.
Stærð: 97,6 fm.
Íbúð: 86,9 fm.
Geymsla: 10,7 fm.
Bílastæði og geymsla


Lautarmói 3, íbúð 301
3 herbergja íbúð á 3. hæð í suð-austur enda.
Íbúðinni fylgir stæði í bílageymslu.
Íbúðin afhendist fullfrágengin. Flísar eru á gólfi baðherbergis. Vínilparket er á öðrum gólfum. Innihurðir eru hvítar sprautulakkaðar.
Vélrænt útsog er frá baðherbergi og eldhúsviftu. Allt neysluvatn fer í gegnum varmaskipti.
Mynd-dyrasími er í íbúðinni. Burðarplata er steypt þar sem einangrun og gólfhitalögn er lögð ofan á áður en sjálf gólfplatan er steypt. Með þessu næst hámarks hljóðeinangrun milli hæða.
Svalagangur
Aðgengi að íbúðum í Lautarmóa 3 er um svalagang. Snjóbræðsla er í svalagangi og glerlokun.
Svalir
Svalir eru á íbúðinni í suð-vestur hlið. Svalirnar eru klæddar með pallaefni. Glerhandriði er á svölum.
Stærð: 98,4 fm.
Íbúð: 86,9 fm.
Geymsla: 11,5 fm.
Bílastæði og geymsla


Lautarmói 3, íbúð 401
3 herbergja íbúð á 4. hæð í suð-austur enda.
Íbúðinni fylgir stæði í bílageymslu.
Íbúðin afhendist fullfrágengin. Flísar eru á gólfi baðherbergis. Vínilparket er á öðrum gólfum. Innihurðir eru hvítar sprautulakkaðar.
Vélrænt útsog er frá baðherbergi og eldhúsviftu. Allt neysluvatn fer í gegnum varmaskipti.
Mynd-dyrasími er í íbúðinni. Burðarplata er steypt þar sem einangrun og gólfhitalögn er lögð ofan á áður en sjálf gólfplatan er steypt. Með þessu næst hámarks hljóðeinangrun milli hæða.
Svalagangur
Aðgengi að íbúðum í Lautarmóa 3 er um svalagang. Snjóbræðsla er í svalagangi og glerlokun.
Svalir
Svalir eru á íbúðinni í suð-vestur hlið. Svalirnar eru klæddar með pallaefni. Glerhandriði er á svölum.
Stærð: 97,6 fm.
Íbúð: 86,9 fm.
Geymsla: 10,7 fm.
Bílastæði og geymsla



